Leuke hoekwoning met een 19 meter diepe achtertuin aan een rustige straat vlakbij het centrum van Geldrop. De keuken is uitgebouwd en er zijn 3 slaapkamers en een badkamer op de verdieping. Deze keurig onderhouden woning legt een prima basis voor je nieuwe thuis.
Indeling:
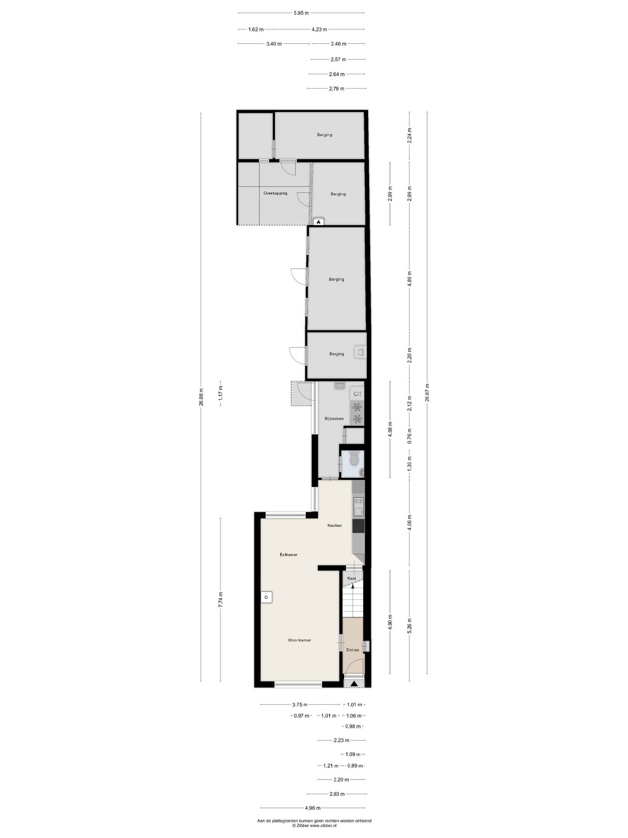
Begane grond: overdekte entree; hal met tegelvloer die ook in woonkamer en keuken is doorgelegd; meterkast; gezellige woonkamer met houtkachel; uitgebouwde en ruime keuken met eiken keukeninrichting voorzien van diverse kastjes en lades en met een inductie kookplaat, oven, afzuigkap en koelkast; deur naar bergkast onder de trap; aansluitende ruime bijkeuken met onder meer een wasbak, inbouw kast en de aansluiting voor de wasmachine; gastentoilet met fonteintje.
1e Verdieping: overloop; slaapkamer 1 met laminaatvloer aan de voorzijde van 10 m2; slaapkamer 2 met laminaatvloer aan de voorzijde van 7 m2; slaapkamer 3 met laminaatvloer en 2 handige inbouwkasten aan de achterzijde van plm. 8 m2; badkamer met ligbad/douche combinatie met spatscherm, wastafel en 2e toilet.
2e Verdieping, via vlizotrap bereikbare bergzolder met de HR CV combi ketel.
De achtertuin is ongeveer 19 meter diep en heeft in het verlengde van de bestaande uitbouw (van de bijkeuken) een 4 tal bergingen/hobbyruimtes (ongeveer 13 m2, 11 m2, 6 m2 en 5 m2). Dus heb je veel berg-hobby ruimte nodig dan ben je hier aan het juiste adres. Maar ook als je juist meer ruimte in de tuin wil hebben dan kunnen enkele bergingen prima verwijderd worden. Aan jouw de keuze ! De tuin grenst aan de zij- en achterkant aan een achterom.
Bijzonderheden:
* de woning is voorzien van rolluiken rondom
* begane grond dubbel glas
* uitgebouwd met bijkeuken en diverse bergingen
* rustige ligging aan doodlopende straat
* vlak bij centrum (loopafstand 800 meter) met alle voorzieningen. Daarnaast beschik Geldrop over een NS station, ziekenhuis en middelbare school.
Leuke hoekwoning met een 19 meter diepe achtertuin aan een rustige straat vlakbij het centrum van Geldrop. De keuken is uitgebouwd en er zijn 3 slaapkamers en een badkamer op de verdieping. Deze keurig onderhouden woning legt een prima basis voor je nieuwe thuis.
Indeling:
Begane grond: overdekte entree; hal met tegelvloer die ook in woonkamer en keuken is doorgelegd; meterkast; gezellige woonkamer met houtkachel; uitgebouwde en ruime keuken met eiken keukeninrichting voorzien van diverse kastjes en lades en met een inductie kookplaat, oven, afzuigkap en koelkast; deur naar bergkast onder de trap; aansluitende ruime bijkeuken met onder meer een wasbak, inbouw kast en de aansluiting voor de wasmachine; gastentoilet met fonteintje.
1e Verdieping: overloop; slaapkamer 1 met laminaatvloer aan de voorzijde van 10 m2; slaapkamer 2 met laminaatvloer aan de voorzijde van 7 m2; slaapkamer 3 met laminaatvloer en 2 handige inbouwkasten aan de achterzijde van plm. 8 m2; badkamer met ligbad/douche combinatie met spatscherm, wastafel en 2e toilet.
2e Verdieping, via vlizotrap bereikbare bergzolder met de HR CV combi ketel.
De achtertuin is ongeveer 19 meter diep en heeft in het verlengde van de bestaande uitbouw (van de bijkeuken) een 4 tal bergingen/hobbyruimtes (ongeveer 13 m2, 11 m2, 6 m2 en 5 m2). Dus heb je veel berg-hobby ruimte nodig dan ben je hier aan het juiste adres. Maar ook als je juist meer ruimte in de tuin wil hebben dan kunnen enkele bergingen prima verwijderd worden. Aan jouw de keuze ! De tuin grenst aan de zij- en achterkant aan een achterom.
Bijzonderheden:
* de woning is voorzien van rolluiken rondom
* begane grond dubbel glas
* uitgebouwd met bijkeuken en diverse bergingen
* rustige ligging aan doodlopende straat
* vlak bij centrum (loopafstand 800 meter) met alle voorzieningen. Daarnaast beschik Geldrop over een NS station, ziekenhuis en middelbare school.