Poorterstraat 29

5663 CG, Geldrop
€ 487.500,- k.k.
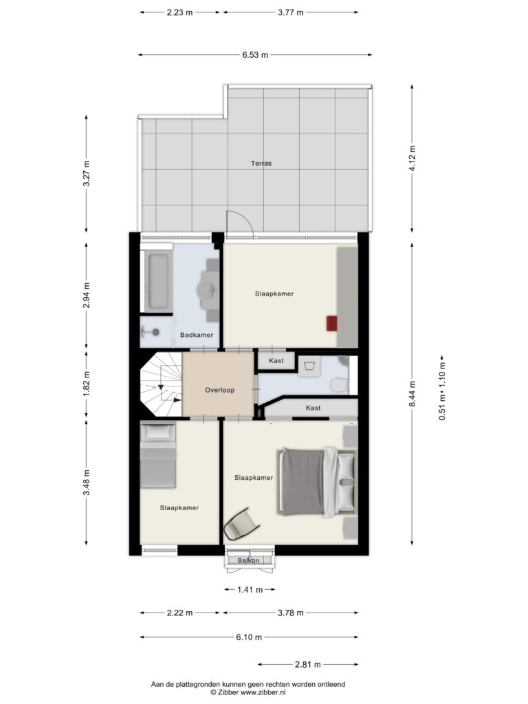
Deze over de gehele breedte uitgebouwde woning biedt een zee aan ruimte. Maar liefst 164 m2 woonoppervlak met 4 ruime slaapkamers vormen de basis van deze fijne gezinswoning. De begane grond heeft een living (woonkamer/keuken) van 65 m2 en is qua plattegrond onderscheidend ten opzichte van een gemiddelde woning. En opvallend is de vrije ligging van de achtertuin doordat deze aan een groenvoorziening grenst. Het huis heeft een C label , een recent vernieuwde CV ketel en 8 zonnepanelen. Om een goed idee te geven van de mogelijkheden bij deze woning hebben we een aantal impressie afbeeldingen toegevoegd ! Indeling: Begane grond: Via de ruime en groene voortuin bereik je over het recent vernieuwde pad de overdekte entree met het in deze wijk kenmerkende bankje; ruime hal met tegelvloer en garderobehoek met bergruimte; meterkast met vernieuwde groepenkast (automaat met 8 groepen en aardlekschakelaars): gemoderniseerd toilet met hangcloset en fonteintje; sfeervolle en grote woonkamer met openhaard, plateau en kastruimte. In de woonkamer zijn diverse indelingen mogelijk. Je kan kiezen om aan de voorkant te gaan zitten maar ook aan de tuinzijde. De eethoek kan je op diverse plekken kwijt. Aan de achterzijde is er een grote schuifpui met convectorput naar de tuin. De keuze is aan jou. De half open keuken ligt centraal in de living en heeft een keuken in hoekopstelling met een ruim aanrechtblad, spoelbak, gaskookplaat, afzuigkap, koelkast, close in boiler, vaatwasser en combi oven. Verder is er voldoende kastruimte aanwezig. Aansluitend aan de woonkamer is de inpandige berging bereikbaar. Naast het stallen van fietsen/tuinspullen is dit ook prima bruikbaar als bijkeuken. 1e Verdieping Overloop; slaapkamer 1 aan de voorzijde van plm. 13 m2 met inbouw kast en een frans balkon; slaapkamer 2 aan de voorzijde van plm. 8m2; slaapkamer 3 aan de achterzijde van plm. 11 m2 met ingebouwde kast en een deur naar het dakterras; badkamer met een ligbad, separate douche en wastafelmeubel met ingebouwde wastafel, spiegel en kast- en lade ruimte; de voormalige badkamer is getransformeerd naar een separaat toilet met een hangcloset, fonteintje en de mogelijkheid om een wasmachine te plaatsen. 2e Verdieping: Overloop met toegangsluik tot een vliering (hier hangt de omvormer voor de zonnepanelen); kleine werk- of hobby kamer van plm. 4 m2 met dakkapel; grote zolder slaapkamer van plm. 18 m2 met wastafel, dakkapel en toegang tot bergruimte; stook/bergzolder met HR CV ketel (2024 CW4). Tuin: De tuin ligt op het oosten, is ongeveer 10 meter diep, 6.50 meter breed en heeft een achterom. Er is opvallend veel privacy, een ruim terras, gazon en plantenborders. Tegen de gevel hangt een groot elektrisch bedienbaar zonnescherm. Bijzonderheden: *De keukenapparaten zijn in de loop van de jaren vernieuwd *De woning heeft 8 zonnepanelen (425 WP, oost west ligging) die in 2024 geplaatst zijn *Er is spouwmuur isolatie en vloer isolatie toegepast. Verder is er grotendeels dubbel glas. Energielabel is C. *Vrije ligging aan de achterzijde. *Basisschool, NS station en groot park allen op loopafstand aanwezig. * Geldrop heeft vele goede voorziening zoals een Ziekenhuis, middelbare school en een gezellig centrum. Maar ook Eindhoven ligt op amper 15 fietsminuten afstand.
Koopprijs
€ 487.500,- k.k.
Status
Verkocht onder voorbehoud
Bouwjaar
1966
Woonoppervlakte
164 m2
Perceel oppervlakte
190 m2
Aantal kamers
6
Aantal slaapkamers
4

Contact

"*" geeft vereiste velden aan

Dit veld is bedoeld voor validatiedoeleinden en moet niet worden gewijzigd.

Foto's

Plattegronden