Maaibeemd 48

4824 NH, Breda
€ 475.000,- k.k.
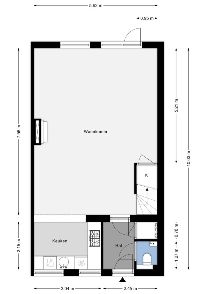
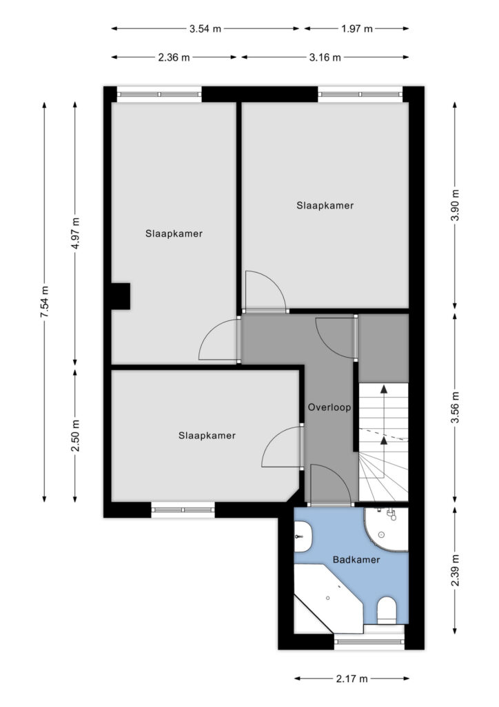
Welkom bij Maaibeemd 48, Breda Gelegen in de gewilde en kindvriendelijke woonwijk 'Gageldonk' ligt deze zeer royale hoekwoning met eigen garage, oprit voor het parkeren van 3 auto’s, energielabel C, 10 zonnepanelen (2022) én een zonnige achtertuin op het zuiden met achterom. De woning is gelegen aan een autoluwe woonstraat met enkel bestemmingsverkeer waardoor optimaal van alle rust en privacy kan worden genoten. De scholen, winkelcentrum, openbaar vervoer, evenals een ruim aanbod aan sociale voorzieningen, zijn op loop- en fietsafstand bereikbaar. De verbinding ten opzichte van het centrum, station Breda, station Breda-Prinsenbeek en de diverse uitvalswegen is uitstekend. Bouwjaar ca. 1980 Woonoppervlakte ca. 136m² Perceeloppervlakte 248m² Inhoud ca. 483m³ LIGGING EN OMGEVING De woning ligt in de rustige woonwijk Gageldonk (Haagse Beemden) en op korte loopafstand van winkels, gezondheidscentra, scholen, kinderopvang en BSO locaties, kinderboerderij en verschillende sportverenigingen. Winkelcentrum Heksenwiel, de Asterdplas, Haagse Beemdenbos en NS-station Prinsenbeek zijn goed bereikbaar per auto, fiets en bus. Het bruisende stadscentrum van Breda is op ca. 10 fietsminuten afstand. Via de nabij gelegen uitvalswegen heeft u een vlotte verbinding met de snelwegen. Het nabijgelegen landgoed “De Burgst" heeft een beschermde status als natuurmonument. BIJZONDERHEDEN: • 4 slaapkamers • Tuin met berging en achterom op zonnige zuiden • Energielabel C en 10 zonnepanelen (eigendom) • Garage met oprit voor 3 voertuigen • Autoluwe woonlocatie • Basisschool en winkelcentrum de Donk op loopafstand TUIN De privacy biedende achtertuin is gunstig gelegen op het zonnige zuiden. Op de erfgrens met de buren staat een heg en aan de straatzijde is een muur geplaatst evenals aan de achterzijde. Via een poort aan de voor en achterzijde is er ontsluiting naar de openbare weg. Achter in de tuin bevindt zich een garage. GARAGE / OPRIT Garage (ca. 2.79 x 5.57m.) voorzien van een pannendak en een praktische vliering, elektra, loopdeur en kanteldeur naar de oprit. Naast de woning aan de voorzijde is een oprit voor het parkeren van 2 auto’s en voor de garage is plaats voor het parkeren van één auto. INDELING BEGANE GROND ENTREE/HAL Entree/hal met meterkast/kast met hierin de unit stadsverwarming, de toiletruimte en toegang tot de woonkamer. TOILETRUIMTE Betegeld toilet met hangend closet en hoekfonteintje; WOONKAMER De tuingerichte woonkamer (ca. 39m²) geniet een prettige lichtinval middels de vele ramen tot de grond en beschikt over een massief eikenhouten vloer, schouw en openhaard, praktische trapkast, trapopgang naar de eerste verdieping en toegangsdeur naar de tuin. De woonkamer staat aan de voorzijde in verbinding met de keuken. KEUKEN Complete keuken aan de voorzijde in hoekopstelling met granieten werkblad voorzien van spoelbak, een keramische kookplaat, een afzuigkap, een oven, vaatwasmachine, koelkast en diverse opbergkasten/lades. EERSTE VERDIEPING: Overloop met trapopgang naar de tweede verdieping en toegang tot de slaapkamers en badkamer. SLAAPKAMERS (3) slaapkamer I (ca. 2.50 x 3.54m.) gelegen aan de voorzijde; slaapkamer II (ca. 4.97 x 2.36m.) gelegen aan de achterzijde; (ouder) slaapkamer III (ca. 3.90 x 3.16m.) gelegen aan de achterzijde. BADKAMER Ruime betegelde badkamer (ca. 2.39 x 2.17m.) met een halfronde douchecabine voorzien van thermostatische mengkraan, een ligbad, een wastafel en een hangend closet. TWEEDE VERDIEPING Ruime lichte overloop met de opstelplaats van de wasmachine en droger en toegang tot slaapkamer 4 en de berging. SLAAPKAMER 4 Zeer ruime slaapkamer aan de voorzijde (ca 3.52 x 4.04 m, ca. 14 m²), geheel rechtstandig en met hoge kap. BERGING Fijne berging met meer dan voldoende opbergruimte en daglichttoetreding middels het VELUX dakraam. EXTRA INFORMATIE * De woning is aangesloten op de stadsverwarming * Meterkast vernieuwd in 2022 * De warmwatervoorziening geschiedt d.m.v. een warmte wisselaar (huur) * De woning is voorzien van stalen buitenkozijnen grotendeels voorzien van dubbele beglazing * Kruipruimte onder de woning * Zonnescherm op achtergevel ALGEMEEN - Bij een verkoop wordt als basis gebruik gemaakt van het model van de koopovereenkomst, vastgesteld door de Nederlandse Vereniging van Makelaars en Taxateurs in onroerende goederen NVM, VastgoedPRO, VBO Makelaar, de Consumentenbond en Vereniging Eigen Huis. In deze koopovereenkomst wordt standaard de verplichting tot het storten van een waarborgsom of het stellen van een bankgarantie door de koper ter grootte van 10% van de koopsom opgenomen; - Een koopovereenkomst komt tot stand onder de opschortende voorwaarde dat beide partijen de koopakte ondertekenen. Partijen kunnen derhalve aan een mondelinge overeenkomst geen rechten en plichten ontlenen; - Deze informatie is door ons met de nodige zorgvuldigheid samengesteld. Onzerzijds wordt echter geen enkele aansprakelijkheid aanvaard voor enige onvolledigheid, onjuistheid of anderszins, dan wel de gevolgen daarvan. Alle opgegeven maten en oppervlakten zijn indicatief.
Koopprijs
€ 475.000,- k.k.
Status
Verkocht onder voorbehoud
Bouwjaar
1980
Woonoppervlakte
136 m2
Perceel oppervlakte
248 m2
Aantal kamers
6
Aantal slaapkamers
4

Contact

"*" geeft vereiste velden aan

Dit veld is bedoeld voor validatiedoeleinden en moet niet worden gewijzigd.

Foto's

Plattegronden

Video