Jeroen Boschlaan 255

5642 AT, Eindhoven
€ 300.000,- k.k.
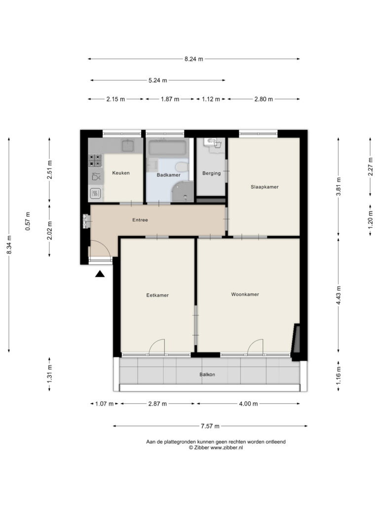
Nieuw in de verkoop bij ERA Focus makelaars, deze sfeervol en karakteristieke woning aan de rand van het bruisende hart van Eindhoven. Dit charmante appartement combineert karakter, comfort en prima ligging in het levendige Eindhoven. Gelegen op de vierde verdieping van verzorgd appartementencomplex, biedt deze woning verrassend veel wooncomfort op loopafstand van de binnenstad. De woning beschikt over een ruime woonkamer met aangrenzende eetkamer, een comfortabele slaapkamer met dubbele openslaande deuren, een leuk balkon met prachtig uitzicht over de skyline van de stad, een ruime badkamer en een sfeervolle keuken met hoekopstelling en een bijkeuken. Wat er opvalt aan de woning: - In kwartaal 2 van 2026 zal het complete dak worden gerenoveerd en voorzien van dakisolatie (volgens de huidige isolatienormen). - Kunststof kozijnen met isolerende beglazing. - Cv ketel uit 2008 - Mechanische ventilatie unit 2025 - Keuken en badkamer ca. 2008. Vaatwasser is in 2018 vervangen. - Vve bijdrage: €210,-/maand Locatie: De ligging van dit appartement is bijzonder gunstig ten opzichte van alle voorzieningen die Eindhoven te bieden heeft. Schuin tegenover het gebouw bevindt zich het praktische en gezellige buurtwinkelcentrum Haakdijk, met onder andere een supermarkt, warenhuis, diverse winkels en ruime gratis parkeergelegenheid. Daarnaast is er een medisch centrum aanwezig voor eerstelijnszorg. Binnen enkele minuten fietsen of wandelen bereikt u de binnenstad, met onder meer het centraal station, winkels, horeca en een bruisend uitgaansleven. Ook ten opzichte van belangrijke locaties zoals High Tech Campus Eindhoven en Eindhoven University of Technology ligt de woning zeer gunstig. Via de uitvalswegen richting A2, A50 en A67 bent u bovendien snel onderweg. INDELING: Begane grond Centrale entree met brievenbussen en bellentableau. Vanuit de hal heeft u toegang tot de individuele bergingen in het souterrain en het trappenhuis naar de verdiepingen. Souterrain Privéberging met voldoende ruimte voor minimaal twee fietsen en extra opslag. Vierde verdieping – appartement Via de entree bereikt u de hal met meterkast (voorzien van 4 groepen en 2 aardlekschakelaars) en intercominstallatie. De hal is afgewerkt met hoge plinten en een nette laminaatvloer. De woonkamer heeft een praktische, vrijwel vierkante indeling en laat zich daardoor eenvoudig inrichten. Vanuit de hal is er toegang tot de woonkamer, die via dubbele openslaande deuren in verbinding staat met zowel de slaapkamer als de eetkamer. De eetkamer is eveneens bereikbaar vanuit de hal en vormt samen met de woonkamer één gezellig geheel dankzij de doorlopende laminaatvloer. Zowel de woonkamer als de eetkamer geven toegang tot het sfeervolle balkon over de volledige breedte van de woning. Dankzij de grote raampartijen geniet u hier van veel daglicht en een fraai uitzicht over de stad. De keuken is uitgevoerd in een hoekopstelling en voorzien van een 4-pits gaskookplaat, afzuigkap, koelkast, vaatwasser en combi-oven. Vanuit het raam boven het aanrecht kijkt u uit over de daken van de achtergelegen karakteristieke jaren ’50-wijk. Aangrenzend bevindt zich de ruime badkamer, ingericht met ligbad, douche, wandcloset en wastafelmeubel. Fraai tegelwerk op vloer en wanden zorgt voor een verzorgde en moderne uitstraling. De slaapkamer ligt aan de rustige achterzijde van het gebouw, net als de keuken en badkamer. Hierdoor geniet u van een rustige nachtrust, ook met geopend raam. De slaapkamer beschikt over een nette laminaatvloer en geeft toegang tot de praktische cv-/wasruimte. Deze voormalige badkamer is voorzien van een terrazzovloer en ingericht met de cv-ketel en aansluitingen voor wasmachine en droger. Daarnaast biedt deze ruimte mogelijkheden voor extra bergruimte, een garderobe of het realiseren van een extra wastafel.
Koopprijs
€ 300.000,- k.k.
Status
Verkocht onder voorbehoud
Bouwjaar
1955
Woonoppervlakte
64 m2
Aantal kamers
3
Aantal slaapkamers
2

Contact

"*" geeft vereiste velden aan

Dit veld is bedoeld voor validatiedoeleinden en moet niet worden gewijzigd.

Foto's

Plattegronden

Video