Hagelingerweg 159

2071 CC, Santpoort-Noord
€ 550.000,- k.k.
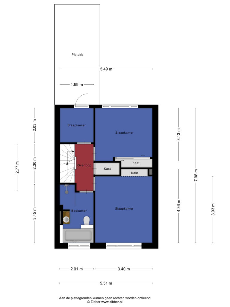
Aan de Hagelingerweg 159 in Santpoort-Noord staat deze charmante twee-onder-een-kapwoning uit 1921, een huis dat historie en karakter ademt, maar tegelijkertijd alle comfort van nu biedt. Achter de fraaie voorgevel met kenmerkende knipvoeg schuilt een sfeervolle woning met een gebruiksoppervlakte van 113 m², gelegen op een verzorgd perceel van 123 m². Bij binnenkomst via de authentieke vestibule met granito vloer word je direct omringd door de warmte en elegantie van het oorspronkelijke jaren ’20-karakter. De kamer en suite met paneeldeuren, marmeren schouwen en open haard vormt het hart van het huis, waar sfeer en licht samenkomen. Via de openslaande deuren stap je de zonnige achtertuin op het westen in – een heerlijke plek om van de middag- en avondzon te genieten. De dichte keuken is voorzien van inbouwapparatuur en grenst aan een praktische bijkeuken, waardoor het geheel niet alleen stijlvol maar ook functioneel is. Op de eerste verdieping bevinden zich drie goed ingedeelde slaapkamers en een complete badkamer met ligbad, douche, toilet en wastafel. De vaste trap leidt naar de tweede verdieping, waar een ruime vierde slaapkamer met twee dakkapellen extra woonruimte biedt – ook ideaal als werkkamer en/of hobbyruimte. Zowel de voor- als achtertuin zijn met zorg aangelegd en onderhouden, waardoor het geheel een uitnodigende indruk maakt. De woning ligt in het hart van Santpoort-Noord, met winkels, scholen, openbaar vervoer en gezellige horecagelegenheden op loopafstand. Hagelingerweg 159 is een huis waar authenticiteit en comfort hand in hand gaan – een unieke kans voor wie op zoek is naar karakter, sfeer en een prachtige woonplek in een geliefde omgeving. Indeling Begane grond: entree, vestibule, meterkast, hal, toilet, trapopgang, toegang naar kamer en suite met deuren, berging/trapkast, dichte keuken v.v. inbouwapparatuur, bijkeuken en toegang naar de achtertuin. Eerste verdieping: overloop, drie slaapkamers en een badkamer v.v. ligbad, douche, toilet en wastafel. Tweede verdieping: middels vaste trap naar open ruimte/slaapkamer, berging en opstelling/aansluiting cv-ketel. In de achtertuin is er een overkapping geplaatst. Bijzonderheden - energielabel D; - kamer en suite met marmeren schouwen; - open haard in de eetkamer; - openslaande deuren naar de achtertuin; - vestibule met granitovloer; - originele ornamenten en paneeldeuren; - twee dakkapellen op de tweede verdieping; - schilderwerk buiten achterzijde 2024, voorzijde 2025; - 2016 EPS parels onder de begane grondvloer; - 2015 gevels afgestoomd en geïmpregneerd; - dakgoten vervangen in 2002 - 1999 gevels gereinigd, uitgehakt en opnieuw gevoegd; - knipvoeg voorgevel; - riolering tot en met de straat vervangen in 1993; - 1993 elektra vernieuwd/ 2019 krachtstroom; - centrum met diverse winkels op loopafstand. Interesse in deze woning?! Schakel direct uw eigen NVM-aankoopmakelaar in. Uw NVM-aankoopmakelaar komt op voor úw belang en bespaart u tijd, geld en zorgen. Adressen van collega NVM-aankoopmakelaars vindt u op Funda.
Koopprijs
€ 550.000,- k.k.
Status
Verkocht
Bouwjaar
1921
Woonoppervlakte
113 m2
Perceel oppervlakte
123 m2
Aantal kamers
6
Aantal slaapkamers
4

Contact

"*" geeft vereiste velden aan

Dit veld is bedoeld voor validatiedoeleinden en moet niet worden gewijzigd.

Foto's

Plattegronden

Video