Dorpsstraat 843K

1566 EH, Assendelft
€ 685.000,- k.k.
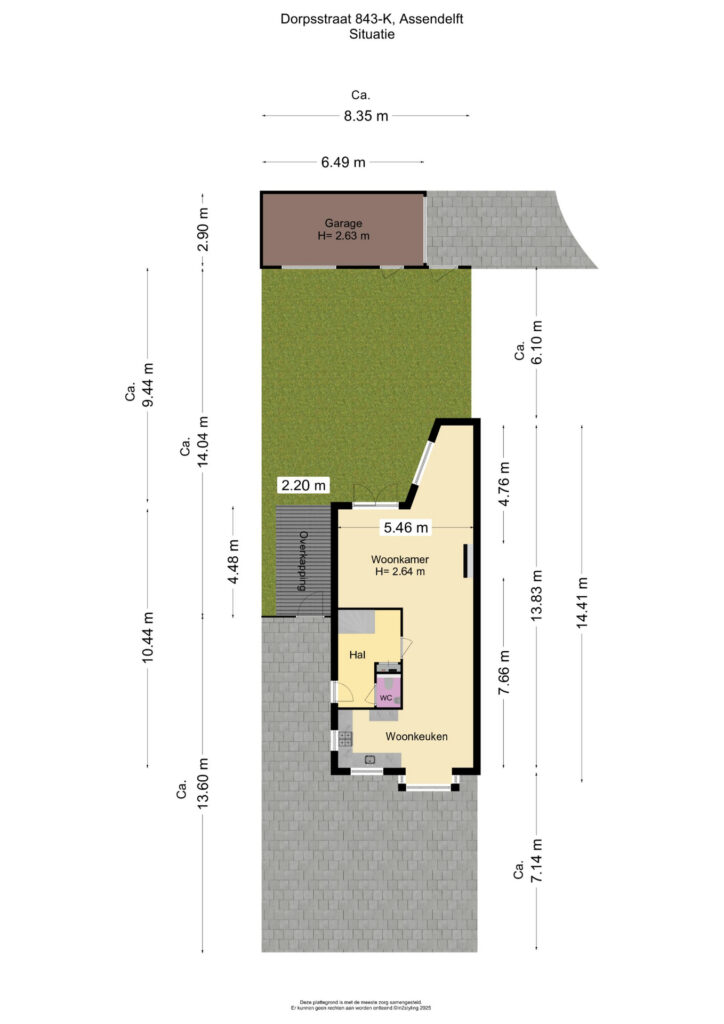
Geschakelde villa met karakter, ruimte en comfort aan de Dorpsstraat Welkom aan de Dorpsstraat 843-K – een stijlvolle geschakelde villa waar comfort, ruimte en sfeer samenkomen. Dit moderne herenhuis, gebouwd in 2004, biedt met zijn 147 m² woonoppervlakte, vrijstaande stenen garage van 19 m², een perceel van 290 m² en parkeergelegenheid voor 3 auto’s op eigen terrein, alles wat u zoekt in een heerlijk familiehuis. Wonen met allure De entree bevindt zich aan de zijkant van de woning en leidt u via de ruime hal naar de lichte en sfeervolle woonkamer. Aan de achterzijde heeft u vanuit het zitgedeelte een prachtig uitzicht op de tuin. Via de openslaande deuren loopt de tuin als het ware over in de woonkamer, waardoor binnen en buiten één geheel vormen. In de wintermaanden zorgt de gezellige gashaard voor extra warmte en sfeer, terwijl de kleine uitbouw aan de tuinzijde een perfecte plek is om in alle rust een boek te lezen of om prettig thuis te werken. Aan de voorzijde vindt u de open keuken in U-opstelling, voorzien van diverse inbouwapparatuur en veel werk- en kastruimte. Dankzij de grote raampartij geniet u hier van levendig uitzicht op de Dorpsstraat, terwijl het eetgedeelte zorgt voor een fijne verbinding met het gezin of gasten tijdens het koken. Ruimte voor het hele gezin Op de eerste verdieping bevinden zich drie slaapkamers, waaronder een royale ouderslaapkamer aan de achterzijde. De centraal gelegen badkamer is praktisch én voorzien van een douchehoek, dubbele wastafel met meubel en een handige wasopstelling met werkblad. Dankzij de twee toegangsdeuren is de badkamer voor iedereen goed bereikbaar. Daarnaast is er op deze verdieping een separaat toilet aanwezig. De tweede verdieping biedt nog meer mogelijkheden: een vierde slaapkamer met fonteintje én een grote multifunctionele ruimte die eenvoudig kan worden omgetoverd tot extra slaapkamer, hobbyruimte of werkkamer. Achter de knieschotten is slimme bergruimte gecreëerd, zodat u de spullen uit het zicht netjes kan opbergen. Buiten genieten De zonnige achtertuin op het zuidoosten is een heerlijke plek om te ontspannen, met volop ruimte om te loungen, te dineren of gewoon van de zon te genieten. Aan de zijkant van de woning is een overkapping gerealiseerd. Achterin de tuin staat de ruime, vrijstaande stenen garage met elektrische deur, welke via het met enkel de naaste buren gedeelde plein te bereiken is. Op de eigen oprit is bovendien plek voor drie auto’s – parkeren is hier dus geen enkel probleem. Waarom dit uw nieuwe thuis kan zijn • Geschakelde villa met een moderne uitstraling • Bouwjaar 2004, goed onderhouden • 147 m² woonoppervlakte op een perceel van 290 m² • Vier (mogelijke vijf) slaapkamers • Zonnige tuin op het zuidoosten • Ruime garage en parkeergelegenheid voor 3 auto’s op eigen terrein • Nabij uitvalswegen, winkels en sportfaciliteiten • Amsterdam, Zaandam en Alkmaar op ca. 15 minuten rijden met de auto • Openbaar vervoer op 5 minuten fietsen • Diverse scholen op loopafstand en/of fietsafstand Dorpsstraat 843-K in Assendelft combineert het beste van twee werelden: de charme van dorps wonen met het comfort van een moderne woning met veel leefruimte en voldoende ruimte om het huis. Dan is dit uw kans. Interesse in deze woning?! Schakel direct uw eigen NVM-aankoopmakelaar in. Uw NVM-aankoopmakelaar komt op voor úw belang en bespaart u tijd, geld en zorgen. Adressen van collega NVM-aankoopmakelaars vindt u op Funda.
Koopprijs
€ 685.000,- k.k.
Status
Verkocht onder voorbehoud
Bouwjaar
2004
Woonoppervlakte
147 m2
Perceel oppervlakte
290 m2
Aantal kamers
6
Aantal slaapkamers
4

Contact

"*" geeft vereiste velden aan

Dit veld is bedoeld voor validatiedoeleinden en moet niet worden gewijzigd.

Foto's

Plattegronden

Video